Sports centre Vllazerimi
Categories

architecture, competitions

Location

Kichevo, North Macedonia

Year

2019

Status

national competition-3rd award

Surface

38166 m2

Description

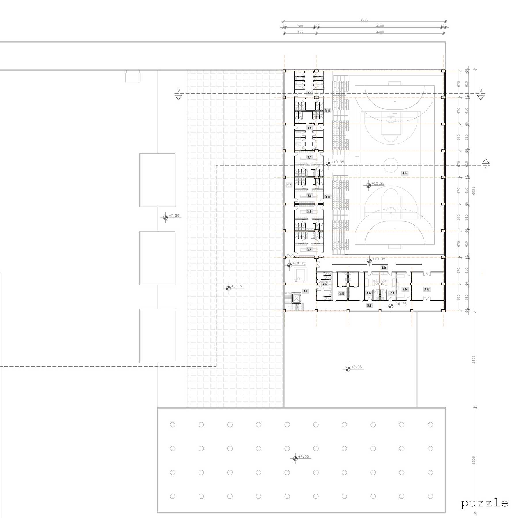
Sports Center Vllazërimi is located nearby the river Zajacka in Kichevo.
The sports complex is a composition of rectangular blocks surrounding an internal plaza. An air bridge and a portico interconnect the separate blocks. A light facade encloses the 7000 - seat football field forming a shopping promenade at the ground level.
A mixed program block consists of an indoor pool, fitness center, bowling alley and dance rooms positioned on each floor. Its roof hosts an open tennis court and a running track.
The football field and the mixed program block are connected with an air bridge faced towards the river, offering fantastic views on the forest. The entrances of the complex are positioned under a floating block which represents a roof of a small part of the inner plaza. A cascade landscape makes a connection with the river.